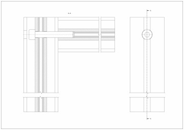
Spojenie dlhou skrutkou
Jedná sa o spojenie, pri ktorom je hlava imbusovej skrutky v drážke vzdialenej od spojovaného profilu. Dlhé skrutkové spojenie je veľmi populárna metóda. Výhodou tohto riešenia je predovšetkým ľahká montáž a tuhosť spojenia. V prípade modulu 45 s 8 mm drážkou urobíme otvor stupňovitým vrtákom s priemerom D = 8,5 mm so zahĺbením pre hlavu skrutky D = 13,5 mm, zatiaľ čo v druhom profile urobíme závit M8. Pri vŕtaní do profilu s hladkou stenou je možné vyvŕtaný otvor o priemere 13,5 mm zaslepiť záslepkou.

Nástroje a komponenty na montáž
| Modul | Potrebné nástroje | Montážne prvky |
|---|---|---|
| M20 R5 | Stupňovitý vrták D = 9x5,3 mm; závitník na M5; Imbusový kľúč | 200525.1 |
| M30 R6 | Stupňovitý vrták D = 11x6,5 mm; závitník na M6; Imbusový kľúč | 200630.1 |
| M30 R8 D5.5 | Stupňovitý vrták D = 11x6,4 mm; závitník na M6; Imbusový kľúč | 200630.1 |
| M30 R8 D7.3 | Stupňovitý vrták D = 13,5x8,5 mm; závitník na M8; Imbusový kľúč | 200830.1 |
| M40 R8 | Stupňovitý vrták D = 13,5x8,5 mm; závitník na M8; Imbusový kľúč | 200840.1 |
| M40-I R8 | Stupňovitý vrták D = 13,5x8,5 mm; závitník na M8; Imbusový kľúč | 200840.1 |
| M40 R10 | Stupňovitý vrták D = 13,5x8,5 mm; závitník na M8; Imbusový kľúč | 201240.1 |
| M45 R8 | Stupňovitý vrták D = 13,5x8,5 mm; závitník na M8; Imbusový kľúč | 200850.1 |
| M45 R10 | Stupňovitý vrták D = 13,5x12,5 mm; závitník na M8; Imbusový kľúč | 201250.1 |
| M45 R10 | Stupňovitý vrták D = 18,5x12,5 mm; závitník na M12; Imbusový kľúč | 201250.1 |



