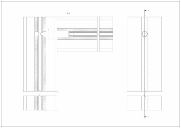
Spojenie krátkou skrutkou
Jedná sa o spojenie, pri ktorom je hlava imbusovej skrutky v drážke bližšie k profilu, ktorý sa má spojiť. Krátke skrutkové spojenie je najbežnejšou metódou používanou na konštrukčné spájanie hliníkových profilov. Najväčšou výhodou tohto riešenia je jednoduchosť a ekonomické hľadisko. Vďaka vyhotoveniu otvoru pre imbusový kľúč zaručuje spojenie možnosť eliminácie menších nepresností v procese vŕtania aj vo fáze montáže. Spojenie je veľmi tuhé.
V prípade modulu 45 s 8 mm drážkou urobíme pre imbusový kľúč otvor s priemerom 7,3 mm až 8,5 mm, zatiaľ čo v druhom profile urobíme závit M8. Pri vŕtaní do profilu s hladkou stenou sa odporúča urobiť otvor s priemerom 7,3 mm, ktorý umožní použitie záslepky otvoru.

Nástroje a komponenty na montáž
| Modul | Potrebné nástroje | Montážne prvky |
|---|---|---|
| M20 R5 | Vrták D = 4,7 mm, závitník M5, imbusový kľúč | |
| 200512.3 | ||
| M30 R6 | Vrták D = 6 mm, závitník M6, imbusový kľúč | |
| 200612 | ||
| M30 R8 D5.5 | Vrták D = 6 mm, závitník M6, imbusový kľúč | 200612.2 |
| M30 R8 D7.3 | Vrták D = 7,3 mm, závitník M8, imbusový klíč | 200820 |
| M40 R8 | Vrták D = 7,3 mm, závitník M8, imbusový kľúč | |
| 200820 | ||
| M40-I R8 | Vrták D = 7,3 mm, závitník M8, imbusový kľúč | 200820 |
| 200820.3 | ||
| M40 R10 | Vrták D = 10 mm, závitník M12, torxový kľúč | 201230.8 |
| Vrták D = 10 mm, torxový kľúč | 201230.9 | |
| M45 R8 | Vrták D = 7,3 mm, závitník M8, imbusový kľúč | 200820.1 |
| 200830.1 - ekonomika | ||
| M45 M10 | Vrták D = 10 mm, závitník M12, torxový kľúč | 201230.8 |
| Vrták D = 10 mm, torxový kľúč | 201230.9 | |
| M50 R10 | Vrták D = 10 mm, závitník M12, torxový kľúč | 201230.8 |
| Vrták D = 10 mm, torxový kľúč | 201230.9 |



