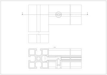
Spojenie rýchlospojkou
Rýchlospojka sa skladá z troch komponentov:
- čap s prvkom zasunutým v drážke
- objímka s vnútorným závitom
- závrtná skrutka
Výhodou spojenia je, že nie je potrebné závitovanie a ľahký prístup k montážnym prvkom. Vďaka rýchlospojke je možné vykonať posuvné spojenia, čo zaručuje možnosť úpravy rozmerov v navrhovaných konštrukciách.
Na vytvorenie spojenia je potrebné urobiť otvor pre objímku s vnútorným závitom. Na druhý profil pre drážku namontujte tŕň s frézovaním, ktorý sa zasunie do vyvŕtaného profilu pozdĺž jeho osi tak, aby frézovanie na tŕni bolo v osi závitového púzdra. Spojenie sa uskutoční utiahnutím nastavovacej skrutky, ktorá posúva čap smerom k objímke.
Nástroje a komponenty na montáž
| Modul | Potrebné nástroje | Montážne prvky |
|---|---|---|
| M40 R8 | Stopková fréza D = 13,5 mm (voliteľný stupňovitý vrták D = 13,5 x 8,5 mm); Imbusový kľúč | 311500 |
| 311500ESD | ||
| M40-I R8 | rýchlospojka použiteľná len do ľahkej rady, ale s prevŕtaním otvoru pre driek | 311500 |
| 311500ESD | ||
| M40 R10 | Vrták D = 17 mm, imbusový kľúč | 311600 |
| 311601 | ||
| 311690 | ||
| M45 R8 | Stopková fréza D = 13,5 mm (voliteľný stupňovitý vrták D = 13,5 x 8,5 mm); Imbusový kľúč | 311400 |
| 311400ESD | ||
| M45 R10 | Vrták D = 17 mm, imbusový kľúč | 311600 |
| 311601 | ||
| 311690 | ||
| M50 R10 | Vrták D = 17 mm, imbusový kľúč | 311600 |
| 311601 | ||
| 311601 |





