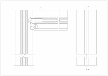
Spojenie - špeciálnym konektorom
Prepojenie so špeciálnym konektorom 214508 sa vyznačuje predovšetkým jednoduchosťou prevedenia. Na vytvorenie spojenia je potrebný iba závit M8 a imbusový kľúč. Spojenie tiež zaručuje možnosť nastavenia vzájomnej polohy spojených prvkov.
Spoj je vyrobený z oceľovej kocky s otvorom a závitom, imbusovej skrutky a nastavovacej skrutky. Na vytvorenie spojenia by sa mala imbusová skrutka s kockou zaskrutkovať do profilu pomocou závitu, ktorý vytvorí minimálnu vôľu umožňujúcu vloženie druhého profilu. Potom sa pomocou nastavovacej skrutky odtlačením od imbusovej skrutky zruší vôľa medzi spojenými prvkami.
Nástroje a komponenty na montáž
| Modul | Potrebné nástroje | Montážne prvky |
|---|---|---|
| M45 R8 | Závitník M8, imbusový kľúč | 214508 |



