Uhlové spojky
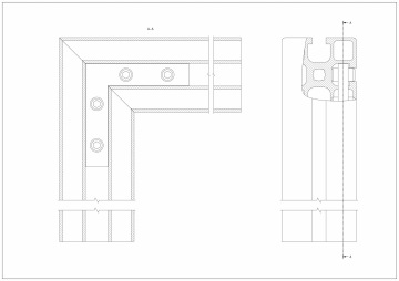
Uhlová spojka je prvkom, ktorý sa vyznačuje predovšetkým vysokou estetikou. Rezanie pod uhlom zaisťuje, že na konci profilu konštrukcie nie je potrebné používať záslepku a spoj skrytý vo vnútri drážky zaručuje takmer neviditeľné spojenie. Z dôvodu zachovania vysokej tuhosti sa odporúča použiť dve uhlové spojky na jeden spoj. V ponuke sú spojky, ktoré umožňujú pripojenie v rôznych uhloch. Spojka sa používa predovšetkým na výrobu krytov, výklopných dverí a kontrolných okien.

Nástroje a komponenty na montáž
| Modul | Potrebné nástroje | Montážne prvky | Uhol |
|---|---|---|---|
| M30 R6 | Imbusový kľúč | 321290 | 90° |
| 321291 | ±45° | ||
| M45 R8 | Imbusový kľúč | 321330 | 30° |
| 321345 | 40° | ||
| 321360 | 60° | ||
| 321390 | 90° | ||
| 321310 | ±45° |



