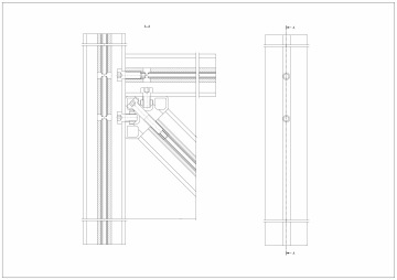
Uhlové vložky z profilu na 45 °
Uhlová spojka z profilu je prvok, ktorý používame na spojenia pod uhlom 45 °. Je to užitočné všade tam, kde konštrukcia vyžaduje použitie výstuh, aby sa spevnil zostrojený rám. Ak je spoj pripevnený k ostatným profilom kolmými povrchmi, je potrebné v nich urobiť montážne otvory, ktoré tvoria vzperu, závit. Ak je polohovacia spojka namontovaná so skoseným povrchom, je potrebné spraviť iba závit. Aby sa zvýšila estetika spojenia, je tiež možné použiť záslepky s kódom výrobku 224503.

Nástroje a komponenty na montáž
| Modul | Potrebné nástroje | Montážne prvky | |||
|---|---|---|---|---|---|
| Číslo | Skrutka | Skrutka + Matica | Počet | ||
| M45 R8 |
Vrták D = 7,3 mm alebo stupňovitý vrták D = 13,5 x 8 mm, |
314545 | 200840 | 210816 + 210802 | 1 / 2 + 2 |
| 3144590 | 200840 | 210816 + 210802 | 1 / 4 + 4 | ||



